Baltimore
  • Places
  • Landlords
  • Favorites
  • Help
    About Colleges & Universities Scam & Fraud Guidance FAQ Disclaimer
    Terms of Use Privacy Policy
    Contact Support Report a Problem
    Post My Ad Visit EMG.ca
  • Login
  • Back
  • Add To Favorites
  • Inquire Now
  • Call Landlord
Previous Next
248 Broad Street
Apartment
248 Broad Street Augusta, GA

From $1,195

  • 2 bed
  • 2 bath
  • 858 sqft
brought to you by
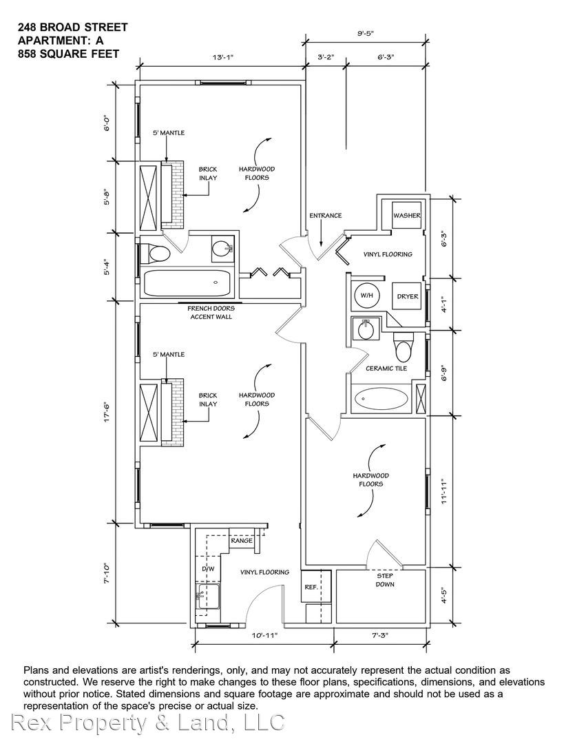
Spacious, Wood Floors, Off-street parking, W/D in Unit - Spacious two bedroom two bath apartment located in the heart of downtown Augusta in close proximity to restaurants and shops. Perfect for Professionals, Medical College of Georgia / Augusta University (MCG/AU) students & staff, Fort Gordon military, Savannah River Site (SRS) and Plant Vogtle employees & contractors. Safe: Well-lit, off-street parking with private entrance and automatic security lighting Well-equipped kitchen with under-cabinet lighting, brand new stainless steel appliances Hardwood floors and blinds throughout Washer & Dryer included Energy efficient central A/C and fully insulated w/storm windows Home is part of national register historic district Maintenance Coverage 24/7/365 This rental rate applies to new residents only Application fee: $55, non-refundable Security deposit: $600 Lease quoted: Will end May-July; 12 month minimum Utilities: garbage pick-up is included: weekly by city, curbside Electricity & gas are tenant's responsibility. Water is $35.00 paid through portal monthly. Renter's insurance required Pet Policy: $200 Pet Deposit Weight Limit 30 pounds Pet rent $10 for Dogs, $5 for cats Breed Restrictions Apply Sorry, no smoking in our properties! The information above has been obtained from sources believed reliable. While we do not doubt its accuracy we have not verified it and make no guarantee, warranty or representation about it. It is your responsibility to independently confirm its accuracy and completeness. Any projections, opinions, assumptions, or estimates used are for example only and do not represent the current or future performance of the property. You should conduct a careful, independent investigation of the property to determine to your satisfaction the suitability of the property for your needs. Rex Property & Land, LLC, Augusta, GA - Since 1985 www.RexGroup.com 706-722-4962
Listing ID:
4233009
Rentlinx ID#:
7766666
Distance to campus:
498.52 mi

Features

  • Fridge
  • Dishwasher
  • Water Included
  • Small Dogs Allowed
  • Air Conditioning
  • Garbage Disposal
  • Washer & Dryer

Amenities

  • Patio
(706) 722-4962 x100

Listings close to this one

Off Hwy 520
Off Hwy 520 Augusta, GA
$2,000
House
  • 2 Bed
  • 2 Bath
  • 504.37-mi
  • Ad# 4254146
972 Heard Avenue
972 Heard Avenue Augusta, GA
$1,695
House
  • 3 Bed
  • 2 Bath
  • 1611-Sqft
  • 500.3-mi
  • Ad# 4240082
944 Bluebird Rd
944 Bluebird Rd Augusta, GA
$1,200
House
  • 2 Bed
  • 1 Bath
  • 1144-Sqft
  • 498.16-mi
  • Ad# 4365203
936 Broad St Unit 207
936 Broad St Unit 207 Augusta, GA
$1,195
House
  • 1 Bed
  • 1 Bath
  • 640-Sqft
  • 498.74-mi
  • Ad# 4233226
Powered by Off-Campus Housing 101
Favorites
Places Roommates